OVERVIEW
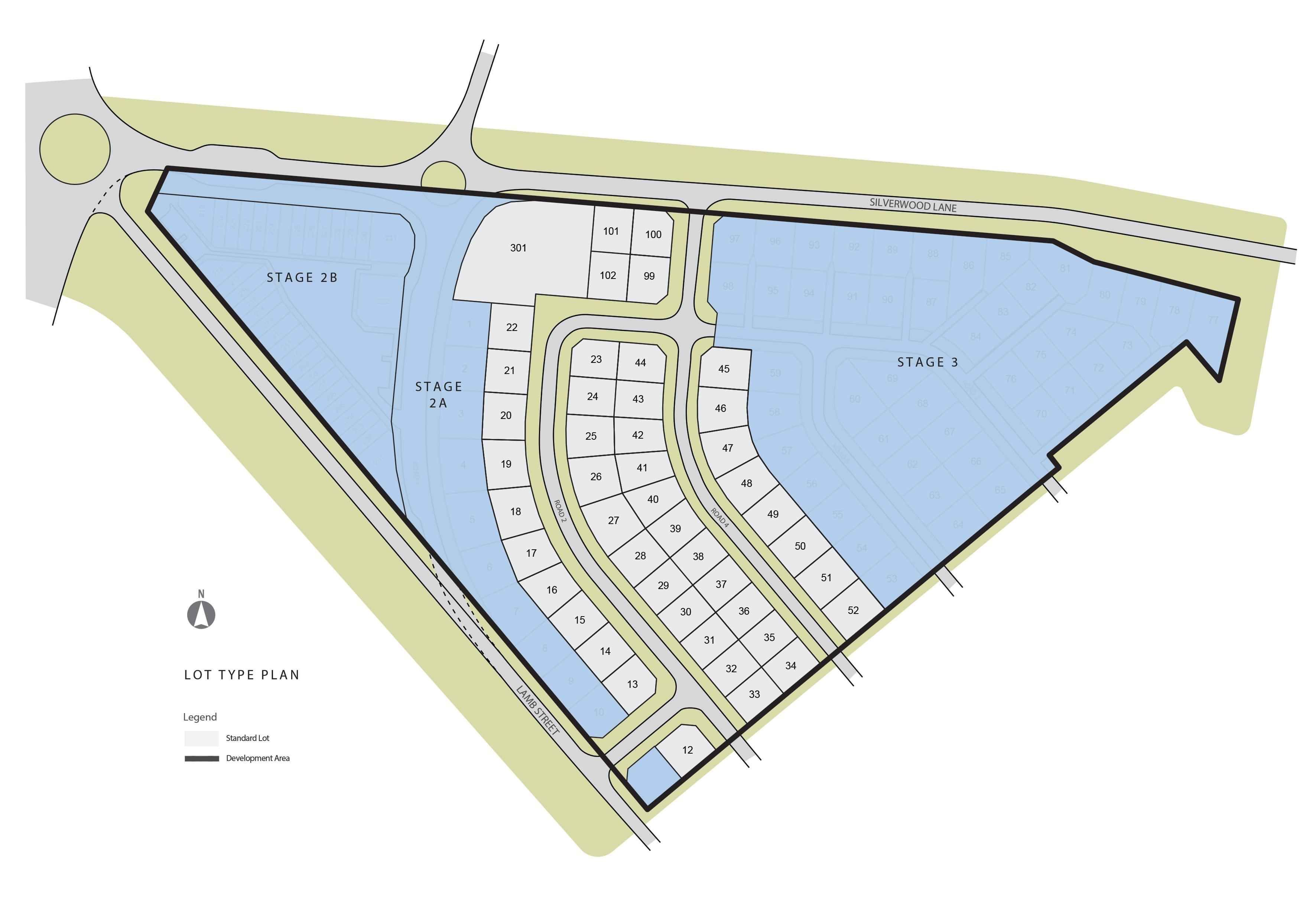
Discover great small-town living at Kotare Park South. This development features 102 diverse residential lots, a connected street network, and plenty of parks and open spaces, all just a stone's throw from Cambridge's vibrant main street.
Do you have land with subdivision and land development possibilities or needs?
Fusing vision, expertise and experience to exceed expectations. Get in touch, we'd love to chat.


